现代风格设计通过硬包质感与金属元素的巧妙结合,打造兼具温馨与轻奢感的居住空间,兼顾实用与美学的高格调生活体验。
精致纯粹,演绎有深度的设计美学
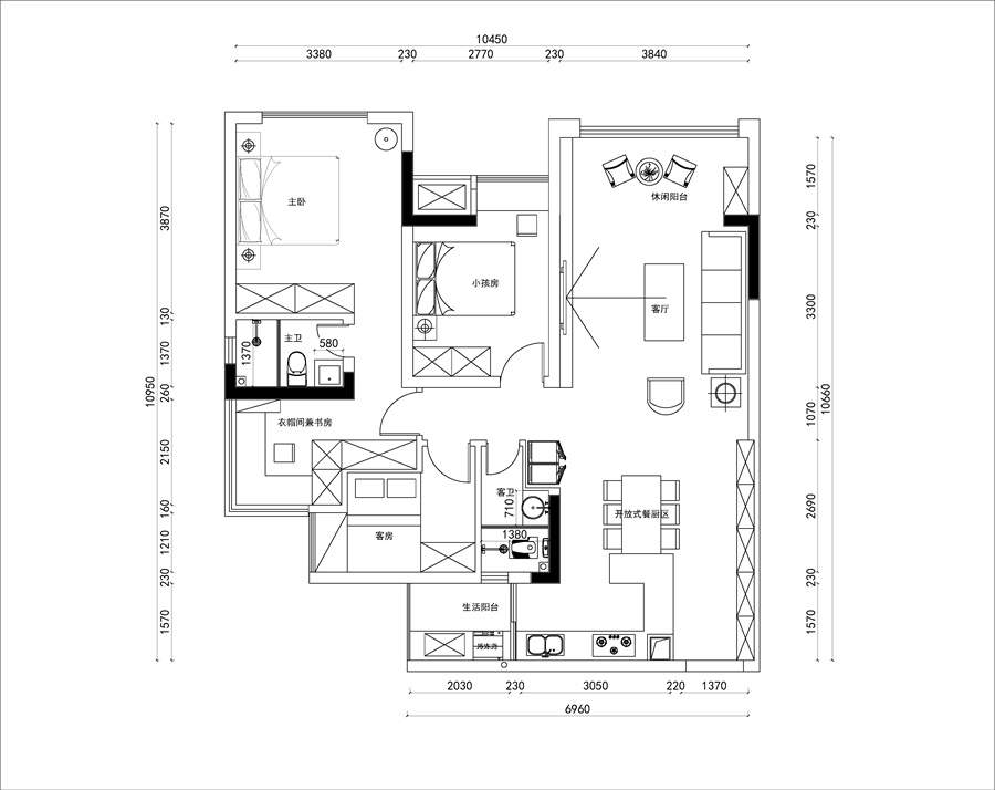
【星 | 全案】中梁云璟
荏苒岁月
四合院
锦绣碧湖B区
钱隆首府
滨江上都璇湾
珠江帝景
围绕当前案例栏目继续延伸,优先展示更受关注和更具参考价值的内容。
通过现代手法诠释中式设计精髓,以简约线条勾勒东方意境,将传统韵味与当代审美结合,打造兼具文化深度与生活品质的空间体验。
通过品质与设计感的完美结合,现代住宅空间以简约风格诠释舒适生活,注重细节打造实用与美学兼具的家居环境,让居住体验更上一层楼。
通过简洁大方的空间布局,结合客厅、餐厅、卧室等区域的合理规划,实现舒适与实用的平衡,注重空间与人、物品的自然融合,营造高品质生活体验...
通过科学的功能需求分析与艺术化的设计组合,实现空间布局的精巧协调。注重室内外材质色彩的平衡搭配,辅以人性化物品陈列方案,最终打造出兼...
现代风格家具通过简洁造型与纯净色彩塑造时尚空间,各区域饰品数量灵活搭配可增强设计层次感,适合追求个性与艺术性的家居改造需求。
新时代下,空间设计需打破传统模式,通过灵活布局满足多场景需求。从客厅到厨房,多样化功能分区的创新方案正在重塑生产组织场所的实用性与适...
极简设计理念通过去除冗余装饰,释放空间赋予居住者更多实用性与情感留白,让家居环境更贴近生活本真。
本文通过分析客厅、卧室等核心区域的布局方案,展现如何根据家庭成员需求灵活调整空间设计,实现居住环境的舒适性与美观性平衡,为现代住宅设...
上一篇
下一篇