通过创新材质与人体工学设计,现代家居空间实现功能与美学平衡,环保理念融入色彩搭配与结构优化,打造兼具舒适性与艺术感的生活环境。
【星 | 全案】中梁云璟
荏苒岁月
珠江帝景
钱隆首府
水岸华府,现代风格
回归岑寂
林溪府-实景
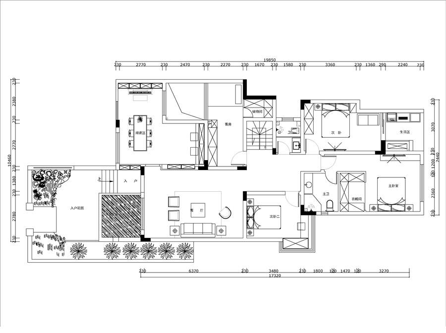
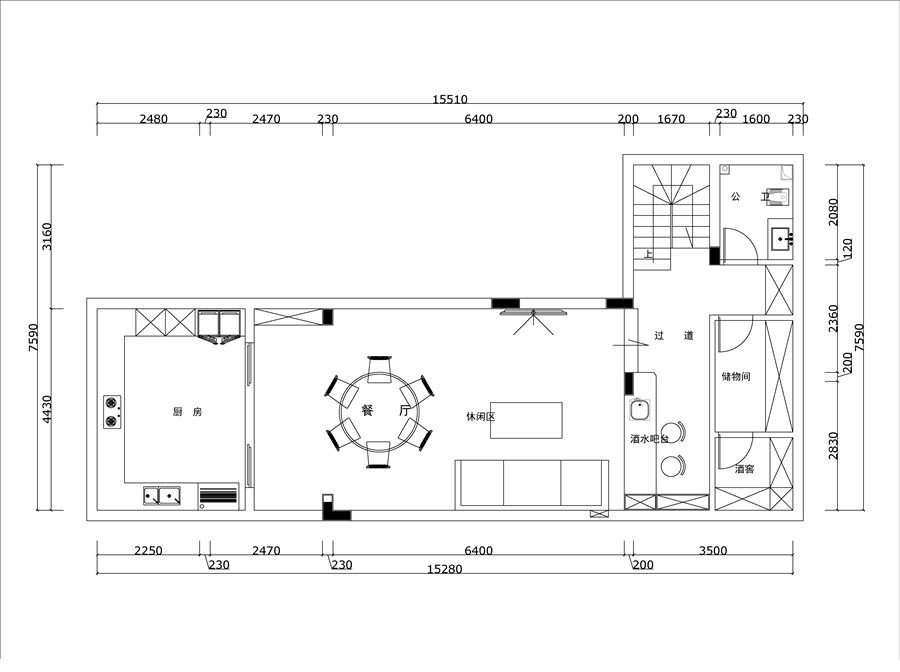
钟山皇庭名郡8栋-03户型-现代
围绕当前案例栏目继续延伸,优先展示更受关注和更具参考价值的内容。
通过品质与设计感的完美结合,现代住宅空间以简约风格诠释舒适生活,注重细节打造实用与美学兼具的家居环境,让居住体验更上一层楼。
通过简洁大方的空间布局,结合客厅、餐厅、卧室等区域的合理规划,实现舒适与实用的平衡,注重空间与人、物品的自然融合,营造高品质生活体验...
通过科学的功能需求分析与艺术化的设计组合,实现空间布局的精巧协调。注重室内外材质色彩的平衡搭配,辅以人性化物品陈列方案,最终打造出兼...
现代风格家具通过简洁造型与纯净色彩塑造时尚空间,各区域饰品数量灵活搭配可增强设计层次感,适合追求个性与艺术性的家居改造需求。
新时代下,空间设计需打破传统模式,通过灵活布局满足多场景需求。从客厅到厨房,多样化功能分区的创新方案正在重塑生产组织场所的实用性与适...
新中式风格以传统元素为基底,融入现代设计手法,平衡文化传承与创新,通过简约线条与中式意境的结合,满足现代人对优雅空间的需求,展现东方...
通过整体连贯性设计与层次分区,现代空间有效提升办公沟通效率,实现功能利用率最大化,兼顾美观与实用性需求。
现代简约风格通过去除冗余装饰,以简洁线条与功能性元素构建空间感。本文解析如何运用极简设计原则,实现客厅、餐厅、卧室等区域的视觉通透与...
上一篇
下一篇