设计理念
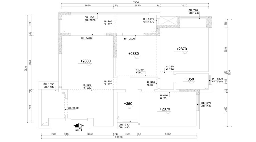
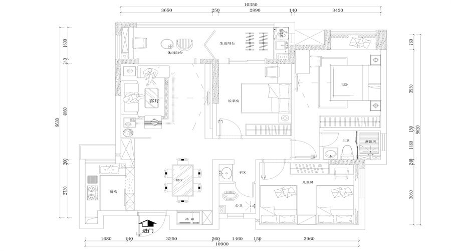
新房位于贺州钟山镇,面积113㎡,三室两厅两卫的格局。对于新家的期待,屋主希望不拘泥于程度化设计,摒弃花哨与繁杂,还原家的舒适与自在。同时,倾向简单且精简的生活方式。
客厅
客厅
4张
餐厅
餐厅
4张
卧室
卧室
1张
厨房
厨房
1张
儿童房
儿童房
2张
主人房
主人房
2张
案例展示
案例展示
2张
