展鸿凯达装饰材料有限公司欢迎您!
碧桂园凯旋城6-02户型-现代轻奢
案例导读

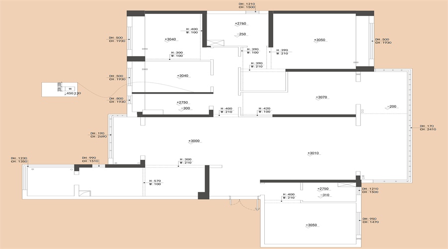
本案通过设计师对五房格局的合理规划及轻奢风格软装的巧妙运用,以约36万元半包预算实现实用与美学的平衡,完美诠释当代家庭对精致生活品质的追求。

SEO关键词
专题标签
设计理念
这是一套200㎡的五房户型,半包预算花费36万左右,经过设计师的精心布局,软装搭配完全营造出轻奢的氛围。业主希望内饰能够反映他们的品味,所有线条和形状都呼应了新的低调奢华,实用美观。精巧的格局布置,精致的高端定制,每一个细节都彰显屋主对美好生活品质的追求与向往。
客厅
碧桂园凯旋城6-02户型-现代轻奢(图1) 碧桂园凯旋城6-02户型-现代轻奢(图2) 碧桂园凯旋城6-02户型-现代轻奢(图3) 碧桂园凯旋城6-02户型-现代轻奢(图4) 碧桂园凯旋城6-02户型-现代轻奢(图5)
客厅
5张
餐厅
碧桂园凯旋城6-02户型-现代轻奢(图6) 碧桂园凯旋城6-02户型-现代轻奢(图7) 碧桂园凯旋城6-02户型-现代轻奢(图8)
餐厅
3张
卧室
碧桂园凯旋城6-02户型-现代轻奢(图9) 碧桂园凯旋城6-02户型-现代轻奢(图10)
卧室
2张
厨房
碧桂园凯旋城6-02户型-现代轻奢(图11) 碧桂园凯旋城6-02户型-现代轻奢(图12) 碧桂园凯旋城6-02户型-现代轻奢(图13) 碧桂园凯旋城6-02户型-现代轻奢(图14) 碧桂园凯旋城6-02户型-现代轻奢(图15)
厨房
5张
洗手间
碧桂园凯旋城6-02户型-现代轻奢(图16) 碧桂园凯旋城6-02户型-现代轻奢(图17)
洗手间
2张
儿童房
碧桂园凯旋城6-02户型-现代轻奢(图18) 碧桂园凯旋城6-02户型-现代轻奢(图19) 碧桂园凯旋城6-02户型-现代轻奢(图20) 碧桂园凯旋城6-02户型-现代轻奢(图21)
儿童房
4张
主人房
碧桂园凯旋城6-02户型-现代轻奢(图22) 碧桂园凯旋城6-02户型-现代轻奢(图23) 碧桂园凯旋城6-02户型-现代轻奢(图24)
主人房
3张
案例展示
碧桂园凯旋城6-02户型-现代轻奢(图25) 碧桂园凯旋城6-02户型-现代轻奢(图26)
案例展示
2张

碧桂园凯旋城6-02户型-现代轻奢(图27)

碧桂园凯旋城6-02户型-现代轻奢(图28)

精选案例

碧桂园凯旋城6-02户型-现代轻奢

本案通过设计师对五房格局的合理规划及轻奢风格软装的巧妙运用,以约36万元半包预算实现实用与美学的平衡,完美诠释当代家庭对精致生活品质的追求。

  • 所属栏目设计案例
  • 发布时间2026-04-20
  • 更新时间2026-04-20
  • 浏览量
案例栏目
案例关键词
案例标签
推荐案例