设计理念
这是一套136㎡的四房户型,半包花费16万左右,把新家装成更加符合当代人审美的轻奢风格,整体空间以中性色调的简约灰为主体,布置时尚的家具,呈现出一种高级的空间氛围;让年轻的生活充满简约大方的气息
设计简介:
装修风格:现代轻奢风格
建筑面积:136㎡
空间格局:4室2厅2卫
设计师:龙昱成
项目位置:贺州·贺江幸福里
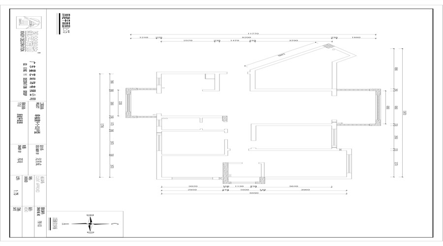
原户型为4+1房户型,有个衣帽间的套房,还赠送了一个12平左右的结构板空间,布局上想要利用好这个结构板,我们就需要对厨房门口做调整,其他空间设计的较为合理,也符合业主生活需求,就没有进行大的整改。
客户需求:1、一个空间宽敞的茶室
2、一个休闲的吧台
3、一个可以放下洗烘的家政间
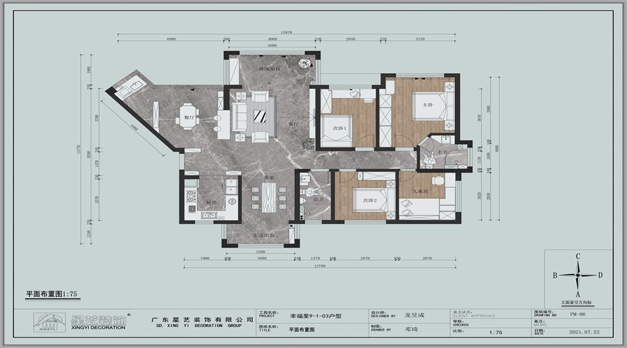
改动了原厨房开门位,利用结构板修改为餐厅,让动线更加合理,这样的修改也可以满足客户对吧台的追求,还可以扩大客厅的视觉空间,让整体有一种大横厅的感觉。
原餐厅位置就做了茶室,方便朋友过来聚会聊天。
设计简介:
装修风格:现代轻奢风格
建筑面积:136㎡
空间格局:4室2厅2卫
设计师:龙昱成
项目位置:贺州·贺江幸福里
原户型为4+1房户型,有个衣帽间的套房,还赠送了一个12平左右的结构板空间,布局上想要利用好这个结构板,我们就需要对厨房门口做调整,其他空间设计的较为合理,也符合业主生活需求,就没有进行大的整改。
客户需求:1、一个空间宽敞的茶室
2、一个休闲的吧台
3、一个可以放下洗烘的家政间
改动了原厨房开门位,利用结构板修改为餐厅,让动线更加合理,这样的修改也可以满足客户对吧台的追求,还可以扩大客厅的视觉空间,让整体有一种大横厅的感觉。
原餐厅位置就做了茶室,方便朋友过来聚会聊天。
客厅
客厅
5张
餐厅
餐厅
3张
卧室
卧室
2张
厨房
厨房
2张
主人房
主人房
2张
案例展示
案例展示
2张
