设计理念
设计风格:现代简约风格
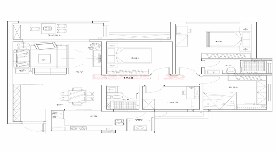
实际面积:145平米
空间格局:四室两厅两卫
设计师:洪楻燚设计师
项目位置:幸福里9栋02户型
装修造价:半包12W
四室两厅结构,让人羡慕!户型布局符合客户需求,所以在平面布局上基本没有改动
入户玄关
在这个区域里面做了一整墙的到顶鞋柜,来满足基本的换鞋需求,收纳一家五口的鞋子是肯定够的,在靠近门的位置也做一个留空设计,开门回家后,可以直接做在上面,包包也可以随手放在后面,或者台面上很是方便。
原建的厨房小了一些,不过可以把生活阳台纳入厨房来使用,这样厨房扩大的同时,还保留了原阳台使用功能
做了一整墙柜子,当然也能满足餐厅的收纳需要,中间做了部分的留空设计处理,可以摆放一些装饰品,增加酒柜的美观度。背景使用了灰色的集成墙板做处理,即耐脏又美观
客厅
整个客厅没有大面积的刷白,结合定制的木饰面板,现代轻奢突出层次感。配合电动沙发使用,累了随时可以调整姿势。想怎么躺都可以。
业主喜欢简单而又不复杂的设计,用简洁的装修,来营造美观的效果,简洁的效果。让屋内简洁而有品味,复杂的装修容易看腻,而简单的装修更加的耐看。
家庭的简约不只是说装修,还反映在家居配饰上的简约,比如不大的屋子,就没有必要为了显得“阔绰”而购置体积较大的物品,以不占面积、多功能等性能为主。
实际面积:145平米
空间格局:四室两厅两卫
设计师:洪楻燚设计师
项目位置:幸福里9栋02户型
装修造价:半包12W
四室两厅结构,让人羡慕!户型布局符合客户需求,所以在平面布局上基本没有改动
入户玄关
在这个区域里面做了一整墙的到顶鞋柜,来满足基本的换鞋需求,收纳一家五口的鞋子是肯定够的,在靠近门的位置也做一个留空设计,开门回家后,可以直接做在上面,包包也可以随手放在后面,或者台面上很是方便。
原建的厨房小了一些,不过可以把生活阳台纳入厨房来使用,这样厨房扩大的同时,还保留了原阳台使用功能
做了一整墙柜子,当然也能满足餐厅的收纳需要,中间做了部分的留空设计处理,可以摆放一些装饰品,增加酒柜的美观度。背景使用了灰色的集成墙板做处理,即耐脏又美观
客厅
整个客厅没有大面积的刷白,结合定制的木饰面板,现代轻奢突出层次感。配合电动沙发使用,累了随时可以调整姿势。想怎么躺都可以。
业主喜欢简单而又不复杂的设计,用简洁的装修,来营造美观的效果,简洁的效果。让屋内简洁而有品味,复杂的装修容易看腻,而简单的装修更加的耐看。
家庭的简约不只是说装修,还反映在家居配饰上的简约,比如不大的屋子,就没有必要为了显得“阔绰”而购置体积较大的物品,以不占面积、多功能等性能为主。
客厅
客厅
4张
餐厅
餐厅
2张
厨房
厨房
1张
客房
客房
1张
案例展示
案例展示
1张
