古典与现代元素的完美融合设计风格,通过精心的色彩搭配、材质选择和家具陈设,创造出独特优雅的复古家居氛围,为居住者提供舒适而富有品味的生活空间体验。
精致纯粹,演绎有深度的设计美学
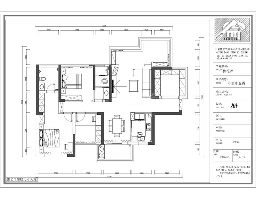
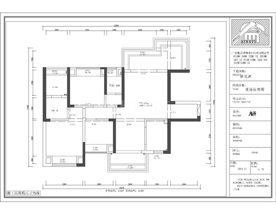
荏苒岁月
锦绣碧湖B区
四合院
钱隆首府
滨江上都璇湾
珠江帝景
林溪府-实景
围绕当前案例栏目继续延伸,优先展示更受关注和更具参考价值的内容。
合理的动线规划与功能区划分,借助玻璃隔断和灰色乳胶漆背景墙,将现代简约风格融入空间设计,实现光线自然流动与舒适生活氛围的完美结合。
本案以方正通透原始户型为核心,通过简洁设计手法实现温暖放松的居住体验,无需复杂改造即可优化空间功能,三组实景展示了客厅、儿童房及主人...
通过拆除冗余元素与材质碰撞,现代风格江景宅实现冷峻与温润的平衡,以灵活空间尺度诠释生活美学,凸显居住者独特个性。
黑金配色通过沉稳与奢华的结合,诠释现代家居的高端美学。黑的深邃与金的璀璨相映成趣,为不同空间注入独特气质,兼顾力量与优雅,重塑轻奢生...
通过现代东方设计手法,将自然元素与人文艺术有机融合,创造兼具仪式感与生活温度的空间体验。从玄关礼序到茶室庭院,诠释东方美学在当代居住...
通过新中式风格的创新演绎,以简约线条和传统意境融合现代实用需求,实现传统美学与当代居住舒适度的统一,打造兼具文化底蕴与生活品质的空间...
本案通过优化阳台布局与功能分区,打造适合三口之家的宽敞、简约且动线顺畅住宅,兼顾卫生洁癖需求与自然采光体验。
奶油风以温柔奶油色调和简约设计为核心,通过低亮度、干净利落的空间布局,为现代忙碌生活提供宁静放松的居家环境,提升生活品质与心灵舒适度...
上一篇
下一篇