现代风格装修以黑白灰中性色为主调,巧妙融入鲜艳色彩点缀,营造出强烈的视觉冲击效果。通过客厅、餐厅、玄关等空间的实际案例展示,为您的家居装修提供专业参考。
精致纯粹,演绎有深度的设计美学
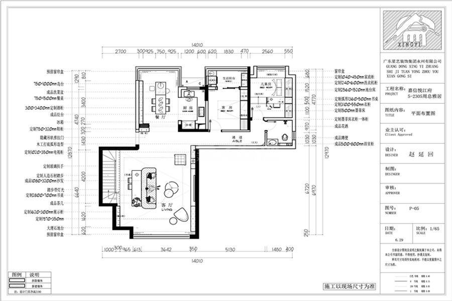
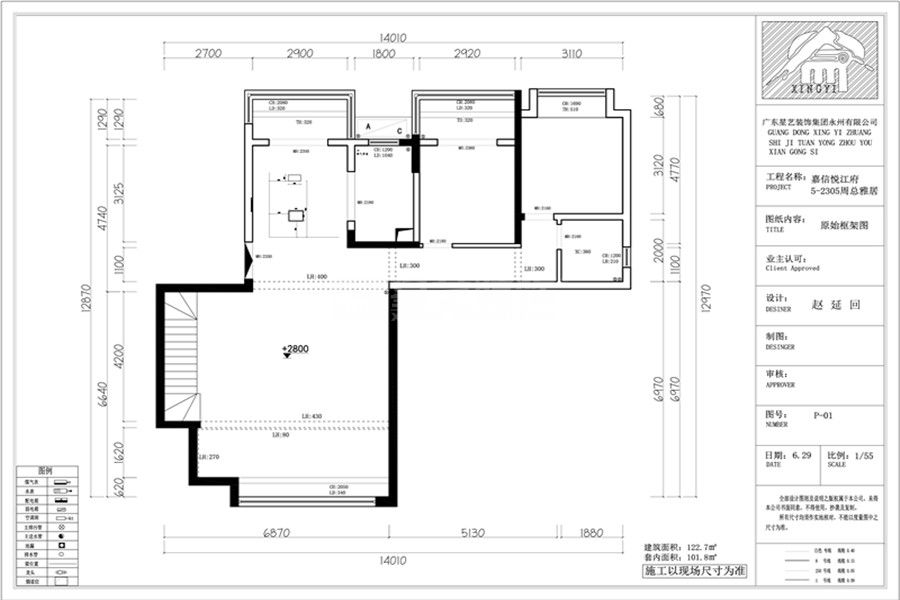
【星 | 全案】中梁云璟
荏苒岁月
锦绣碧湖B区
四合院
钱隆首府
滨江上都璇湾
珠江帝景
围绕当前案例栏目继续延伸,优先展示更受关注和更具参考价值的内容。
通过四大功能空间划分与现代东方设计元素结合,展现河池山水自然风貌,实现居住空间的秩序感与艺术性平衡。
通过空间与自然的对话,重新定义城市居所的温度与意境。设计打破传统边界,让家成为承载城市记忆与生活能量的诗意场域,实现人与环境的深度互...
轻奢主义style通过简约线条与质感材质的结合,让家成为彰显品位的载体。优雅的家居设计不仅满足功能性需求,更在细节中传递对生活的热情...
通过优化客厅、餐厅、卧室等核心区域设计,现代住宅以自在尺度与稳重质感诠释舒适生活,满足城市人群对品质空间的长期需求。
通过科学设计与艺术布局,灵活运用客厅、卧室、儿童房等空间,构建承载亲情、传递温暖的家居环境,让居住空间成为情感交流的温暖港湾。
低饱和度奶油色与米白、大地色的碰撞,打造兼具轻盈感与醇厚感的温暖空间。通过案例展示解析奶油风如何以柔和色彩营造软糯优雅的居住氛围,适...
本案以现代简约手法重构新中式风格,通过硬朗直线条与层次分明的空间布局,平衡传统韵味与当代功能需求,呈现兼具时尚感与实用性的高端别墅居...
本案通过高级灰与金属材质的巧妙搭配,结合护墙板、仿大理石大板等元素,打造简约而不失品质的居住空间。开放式的布局、良好的采光及细节处理...
上一篇
下一篇