家是生活的底色,交错着人生的过去、现在、将来;将房子装成自己喜欢的样子,给生活时时刻刻的惊喜与享受。本案法式优雅+东方复古韵味,带来生活之上的双重浪漫,流转之间,得以看见故事里浓墨重彩的一瞬。

装修风格:法式复古风格
设计团队:呼市星艺装饰成志青
项目名称:中实春天里
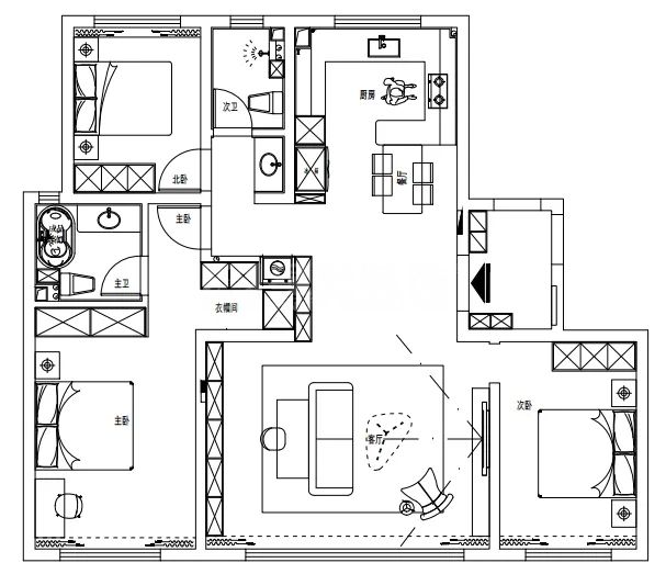
户型

客厅

空间像一首经典的歌曲,像一部浪漫的电影,一进门精致的石膏造型,阐述了生活的情趣与仪式感。不觉春去夏又来,人生须臾当及时,知喜乐而践行,将所爱集为身旁之物,于法式复古中探寻生活的理想主义。

电视背景墙没有复杂电视柜,流畅利落的线条感为平衡了丰富的背景墙画面,为空间带来轻盈感。这一方天地装得下对星辰汪洋的幽微遐思,亦可见青蘋之末的温润周到。

设计,源自对美好生活的想象与期许,在复古精致的细节之处彰显品味,引人探索和体验更多的美感。
餐厅

厨房与餐厅半开放式的布局状态,拓宽小厨房空间不足的尴尬,餐桌餐椅的配色,也让餐厨充满趣味性。
卧室


提升居住的舒适感,卧室的设计一定是关键,大胆在黑白法式中增添绿与褐,以色彩重心的转移,将空间的轻盈美感展现,诠释法式的精致浪漫。
纷繁诗意流转,卧室内雕花石膏线与色块点缀,在原有空间形态之上做细部塑造,留住静谧温雅的氛围,却又胜在复古韵脚。
卫生间

卫生间是我们生活的重要场所,在家中是一个美美的卫生间,整个人的心情都变得更加美丽。精致的地面花砖和墙壁的文化砖,以简单黑白两色就打造出丰富的纹理和视觉层次。

怀古的浪漫情怀在此间以色彩调和,它是娓娓道来的、沉甸甸的美。跋涉于岁月起伏,越过时间的长河,关于烟火的故事也丰盈得更加迷人。